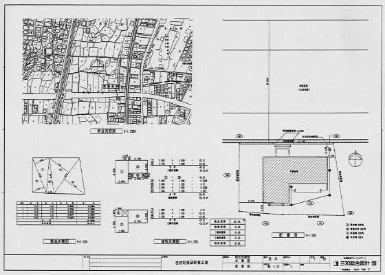
04 附近見取図・配置図
配置図