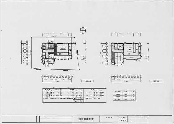
05 平面図
平面図