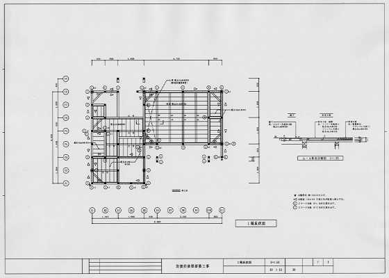
30@1K}